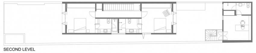
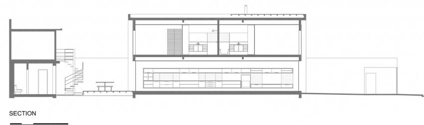
Căn nhà được xây dựng vào năm 2008 trên 1 khu đất có kích thước tương đối nhỏ hẹp. Nhận thức được những hạn chế về hình dạng khu đất, những nhà thiết kế đã để mở hầu như toàn bộ tầng 1, tạo dòng chảy linh hoạt về không gian. Các trang thiết bị nội thất được bố trí dọc theo chiều sâu của căn nhà để cung cấp hệ tủ kệ trong phòng khách cũng như đáp ứng khả năng lưu trữ cho khu vực bếp và phòng ăn. Cầu thang lên khu vực phòng ngủ được đặt đối diện với mảng bê tông và tắm trong ánh sáng mặt trời thông qua một mái nhà kính, kết nối với sân thượng- cũng là nơi bạn có thể chiêm ngưỡng toàn bộ không gian xanh xung quanh căn nhà. Giản dị nhưng thân thiện và ấm cúng chính là những cảm nhận đầu tiên khi được đặt chân vào bên trong ngôi nhà.
Nguồn: Homedsgn.com










